Come utente ospite puoi visualizzare solo i prezzi di listino
La possibilità di visualizzare i prezzi netti è gli sconti per quantità è riservata agli utenti registrati
oppure, se ti sei già registrato, accedi al sito utilizzando le tue credenziali
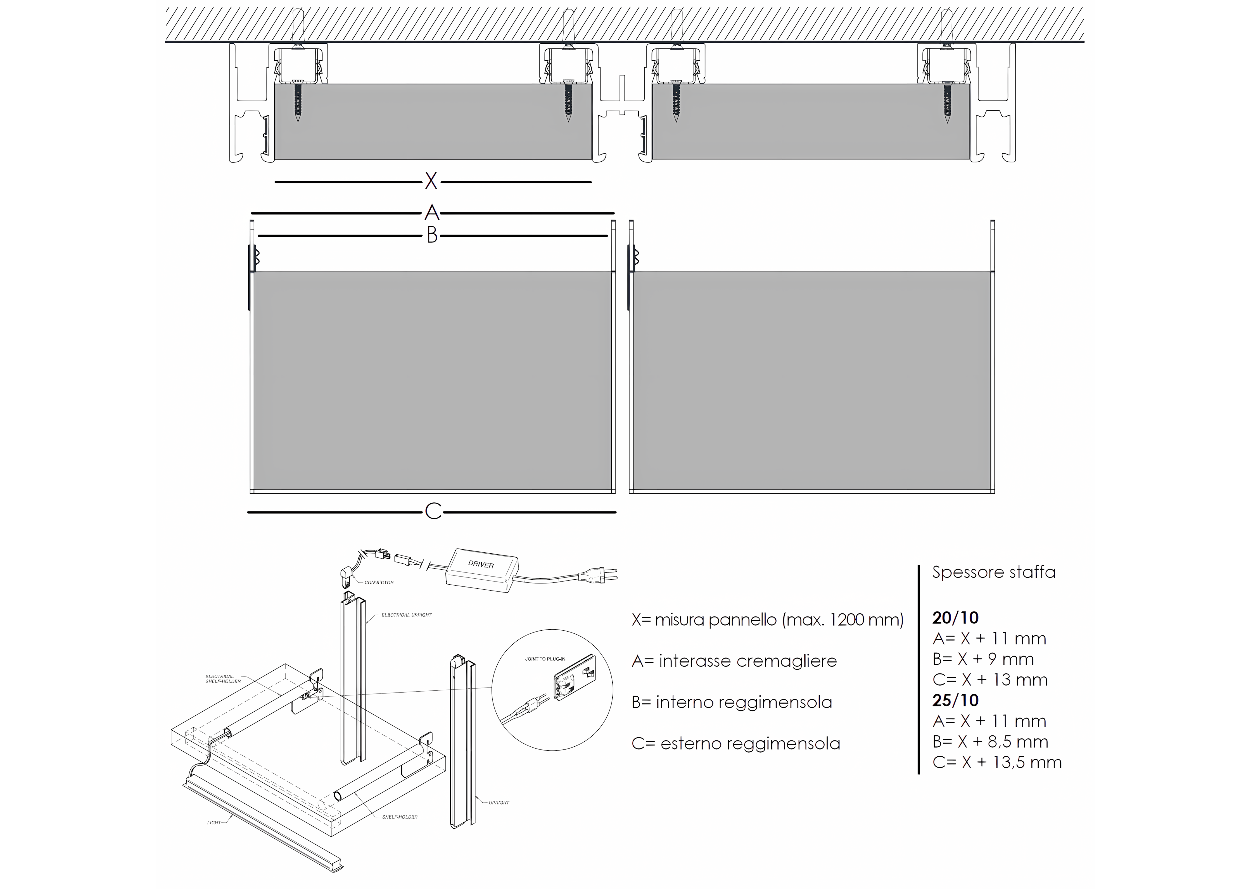
Sistema di cremagliera elettrificata con sistema di connessione elettrico integrato nei supporti reggimensole.
Fissaggio dei pannelli con clip a molla in acciao.
Prima si fissa la cremagliera a muro (o ad un altro tipo di supporto), poi si applicano i pannelli con le clip a molla.
In questo modo è possibile rimuovere in qualsiasi momento i pannelli senza necessità di attrezzi.
Utilizza un nuovo rivoluzionario sistema di connettore ad innesto che consente di collegare in maniera rapida qualsiasi fonte luminosa a led al sistema a montanti.
Permette di attrezzare pareti domestiche e spazi espositivi evitando tutte le problematici relative alla visibilità e all'intralcio dei cavi elettrici.
La versatilità di questo prodotto permette di spostare con facilità le mensole da una posizione all’altra ricollegando nello stesso momentoe senza alcun intervento tutte le connesisone elettriche.

|