cerniere damper jhm softclose 20-80 nero a perno chiusura soft

HG-JHM20-80BL
Sugatsune
€74,48 IVA inclusa

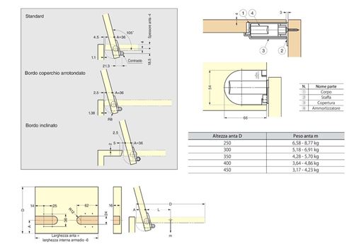
Cerniere a perno con ammortizzatore di chiusura integrato
Montaggio su spalla laterale
Coppia torcente da 6 a 8 N*m
Contrassegno identificazione forza colore giallo
Colore nero



Confezioni di imballo: 1 - 10