Cerniere per porte e serramenti
Cerinere Bross 2D 1080 Glass mm.24x134
Da €76,90 IVA inclusa
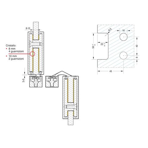
Cerniera invisibile regolabile su dueassi indipendenti per porte in cristallo(vetro)
- possibilità di essere incassata neltelaio
- regolazione bidirezionale:
Y - verticale ±2,5 mm
Z - profondità +2, -1 mm
- realizzata in zama
- profondità nel telaio solo 21 mm
- porte in cristallo (vetro)dello spessore di 8 o 10 mm
| Descrizione documento multimediale |
Edizione |
Pubblicazione |
Link |
| Scheta tecnica cernire Bross 2D 1080 Glass | 2015 | 2015-11-21 |  |